Sonne, Raum & Freiheit – Dachterrassentraum im Obergeschoss! Neu & bezugsbereit!
Objektbeschreibung
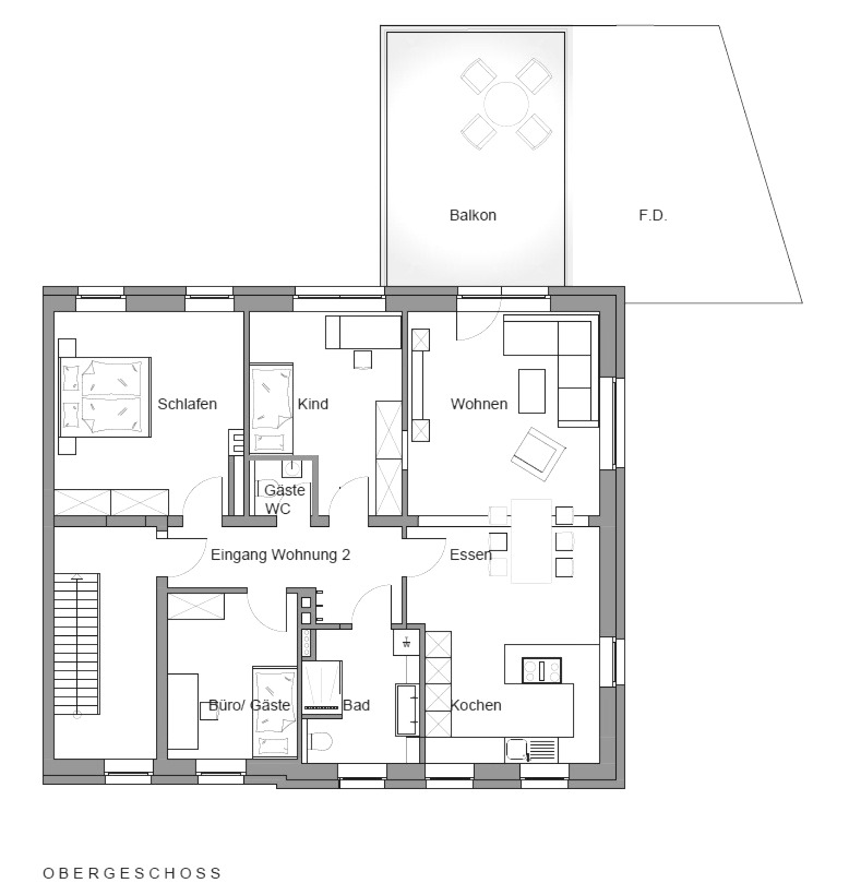
Diese außergewöhnlich großzügige Etagenwohnung vereint modernes Wohnen mit höchstem Komfort und einer Traum-Dachterrasse. In einem gepflegten, neuwertigen Mehrfamilienhaus (3 Wohneinheiten) gelegen, bietet diese Immobilie die perfekte Kombination aus urbaner Nähe und naturnahem Rückzugsort. Wir bieten Ihnen eine hausgroße Etagenwohnung mit 2 Schlafzimmern + Büro, Gäste-WC, Tageslichtbad mit Dusche, Abstellraum im Keller und spektakulärer Dachterrasse an. Die Räumlichkeiten verteilen sich auf insgesamt ca. 112m² Wohnfläche und bieten ausreichend Platz für die ganze Familie und die Verwirklichung Ihrer Wohnideen. Es erwartet Sie ein durchdachtes Raumkonzept mit hellen, großzügigen Zimmern und einer offenen, einladenden Wohnatmosphäre. Herzstück der Wohnung ist der weitläufige Wohn- und Essbereich mit vielen Fenstern, die für ein lichtdurchflutetes Ambiente sorgen und direkten Zugang zur ca. 23m² großen Dachterrasse bieten. Vom geräumigen Flur ausgehend erreichen Sie alle Räumlichkeiten ohne Umwege. Ein Highlight ist sicherlich der sichtbare Träger im Wohn-/Essbereich, der in Verbindung mit dem Echtholzboden einen modernen Look und zugleich eine gemütliche Atmosphäre schafft. Zudem wurde großen Wert auf die Verarbeitung hochwertiger Materialen gelegt. Die Kombination aus den großformatigen Feinsteinzug-Fliesen und dem hochwertigen Echtholzparkett verleiten der Wohnung einen Hauch von Luxus. Die Wohnung ist Teil eines Bauprojektes, was die Kernsanierung eines Gebäudes aus dem Jahr 1961 umfasst. Sie erwerben eine Immobilie im Neubaumaßstab, sowohl die Energieeffizienz, Technik als auch die Ausstattung betreffend. Zur Wohnung gehören zudem zwei Pkw-Stellplätze. Die Fahrradgarage ist gemeinschaftlich nutzbar, sodass Sie ihr E-Bike hier sicher abstellen können.
Wir unterstützen Sie auch gerne in allen Belangen rund um das Thema Immobilien-Finanzierung. Vereinbaren Sie daher gerne einen unverbindlichen Beratungstermin mit uns und überzeugen sich persönlich von diesem einzigartigen Angebot.
Lage
Das Objekt befindet sich in toller Wohnlage von Borken-Weseke. Das gepflegte Wohnumfeld schafft beste Voraussetzungen, um sich wohl und angekommen zu fühlen. Der idyllische und malerische Ententeich von Weseke ist nur wenige Gehminuten entfernt und lädt zu ausgiebigen Spaziergängen ein.
Weseke als Ortsteil von Borken hat in den letzten Jahren eine bemerkenswerte Entwicklung genommen. Begünstigt durch eine zentrale Lage und gute Infrastruktur bietet der Ort nicht nur zahlreichen Unternehmen beste Entfaltungsmöglichkeiten. Das Angebot an Sport-, Freizeit-, Kultur- und Erholungsmöglichkeiten ist so vielfältig wie der jährlich stattfindende Karnevalsumzug oder das allseits beliebte Schützenfest.
Die unmittelbare Nähe zur niederländischen Grenze sowie die direkte Anbindung an die B70 und die Umgehung zur B67 machen Weseke auch für Pendler sehr attraktiv.






